S series-radial arm robot

Main explanation
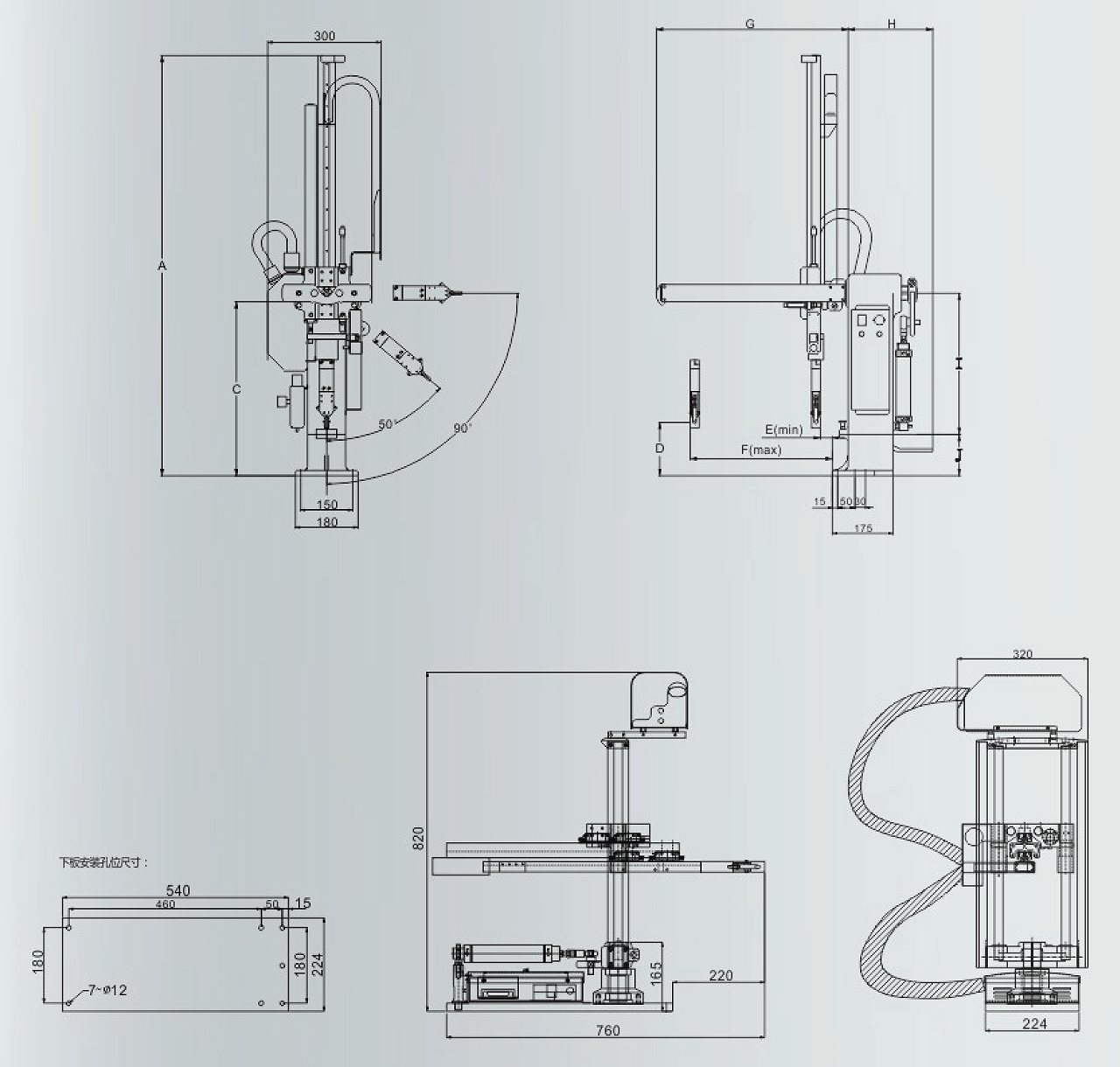
S-series radial-arm robot series is mainly applied in pouting gate take-out of 50-200T horizontal injection molding machine, there are two forms of arm of single stage and double stage, the whole machines spinning out and in, pulling out and traveling up and down are pneumatic driven, full-featured machine is equipped with vacuum generator and standard ceiling fixture, and single-function machine has no such device.
Size and chart650~750

Main Specification650~750
Model | Applied to injection molding machine (ton) | Travel (mm) | Side posture angle (degree) | Max load (including ceiling fixtures) | Time (sec) | Driven way | Working pressure (kgf/cm) | Air Consumption (nl/cycle) | Power supply | Power consumption (kva) | NW (kg) | |||
Up and down | Pull up | Spin out | Gripper spinning | Take out | Empty loop | |||||||||
SSI-650+V | 50-180 | 650 | Standard:120 Pick out and buy:200 |
50-90 | 90° | 2 | 0.9 | 4.2 | Air Pressure | 5~7 | 14 | Single-phase AC220V 50/60HZ |
0.2 | 33 |
SSI-750+V | 100-220 | 750 | 1.0 | 4.6 | 16 | 35 | ||||||||
PSII-650+V | 65-220 | 650 | 0.7 | 4 | 16.2 | 60 |
Model | A | B | C | D | E | F | G | H | I | J |
SSI-650+V | 1250 | 1180 | 508 | 200 | 80 | 420 | 560 | 255 | 413 | 120 |
SSI-750+V | 1350 | 1260 |
For process improvement, model update without notice!